New for 2026 Design by Umbrella Bathrooms
New for 2026 Design by Umbrella Bathrooms

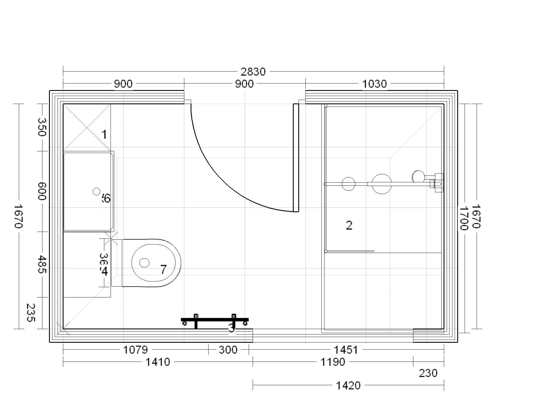
Design for assisted living bathroom.

Finished Bathroom - Matching Design plan

Finished Bathroom - Matching Design plan
Umbrella Bathrooms Ltd
1442D Wimborne Road Bournemouth BH10 7AS
Copyright © 2026 Umbrella Bathrooms - All Rights Reserved.